案例名称:唯伊整形医院局部改造装修装饰工程
设计面积:430㎡
上传时间:2018-12-21
项目地址:广州市珠江新城丽晶都汇4F
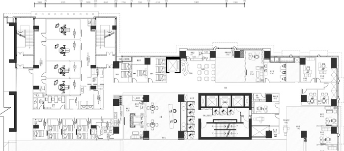
仅此一个你,岂能不珍惜……鼎御装饰,不仅仅是医美空间设计,还擅于处理医患关系,基于实用性原则,打造一个有魅力的医疗会馆。这儿是广州唯伊整形医院装修改造工程,早期的老客户,因手术室过于老旧,需要局部改造,节选1张平面图+2张现场图+2张手术室竣工图,请鉴赏!
创新引领发展,科技赢得未来,装修行业亦是如此。尤其是整形医院,可谓是追美者的圣地,也算是半个时尚圈,本身就讲究装饰效果。讲真的,设计也有时效性的,过了潮流,就需要升级改造。本案核心是手术室改造,它是整形医院的心脏,看似简单,实则复杂,必须结合洁净、供氧等诸多因素,而不是片面的装演设计,您说对吗?
——唯伊整形医院装修——




口说无凭,案例为实……广州唯伊整形怎么样?唯伊整形,虽是老医院,但其高贵、典雅、舒适、时尚的整体氛围,还是很新颖的。不愧是鼎御装饰老作品,装修华丽、时尚,色彩温馨、雅致,你喜欢吗?
延伸阅读:整形医院装修→→案例持续更新中
【品牌简介】唯伊整形,全称是广州唯伊整形美容医疗机构,一家集研发、生产、健康管理、医学美容服务于一体的高端医学美容医院,下设整形美容中心、无创整形中心、皮肤管理中心等科室,鼎御金牌合作商!
电 话:020-38882098
联 系 人: 蒋 工
手 机:13794414256